Détails du bien
Détails du bien
- Type: Appartement récent
- Surface: 92m2
- 3 Chambres
- 2 Salles d'eau
- Laval
Appartement 4 pièces de 92m² à Laval
865 € CC* - Ref. GES02000006-381
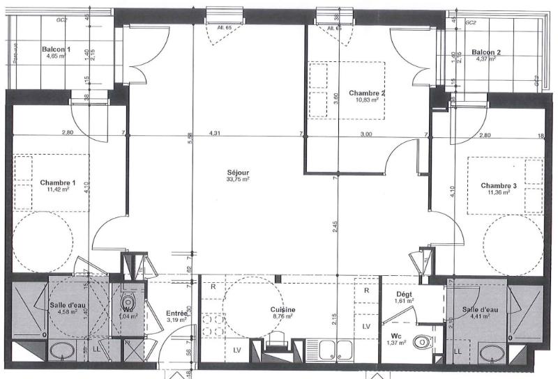
LAVAL - T4 de 92,32 m² comprenant une entrée avec wc et placard, un séjour/salon avec balcon et coin cuisine aménagée et équipée (hotte, plaque induction et four), un dégagement d'accès au wc et à la salle de douches, 3 chambres avec accès balcons dont 1 chambre avec salle d'eau privative.
Chauffage individuel gaz.
Parkings 23 et 27 en extérieur.
Plafond de ressources PINEL avec revenu fiscal de référence à ne pas dépasser : personne seul 35825 €, couple 47 842 €.
« Les informations sur les risques auxquels ce bien est exposé sont disponibles sur le site Géorisques : www.georisques.gouv.fr »
Loyer : 865.00 € dont 45.00 € de provisions sur charges avec une régularisation annuelle (hormis l'eau, l'électricité et le chauffage)
Dépôt de garantie : 820.00 €
Honoraires de location (charge locataire) : 596.36 €
Honoraires d'état des lieux (charge locataire) : 223.64 €.
Loyer de 865,00 € par mois charges comprises dont 45,00 € par mois de provision pour charges (soumis à la régularisation annuelle).
Les honoraires charge locataire sont de 820,00 € ( soit 8,88 euros/m² ) dont 223,64 € pour état des lieux ( soit 2,42 euros/m² ).
Montant estimé des dépenses annuelles d'énergie pour un usage standard : entre 459 et 622 euros. Prix moyens des énergies indexés en 2021.
Informations détaillées
- Charges : 45 €
- Honoraires de location : 820 €
- Dépôt de garantie : 820 €
- Nombre d'étage(s) : 3
- Surface Habitable : 92m²
- Nombre de pièce(s) : 4
- Nombre de chambre(s) : 3
- Année de construction : 2022
- Catégorie : Appartement récent
- Etat Général : Bon état
- Nombre de Balcon(s) : 2
- Salle d'eau : 2
- Nombre de Parking(s) : 2
- Installation Eau Chaude : Chaudière
- Accès handicapé : Non
- Ascenseur : Oui
- Chauffage : Individuel
- Mécanisme de chauffage : Radiateur
- Mode Chauffage : Gaz
* CC = Charges Comprises.
Version imprimable